Curte

Facilități:

  • Acces pentru persoane cu dizabilități
  • Acces cu animale de companie
  • Acces auto pentru descărcare echipamente
  • Toalete în proximitate
  • Wi-fi
  • Spațiu flexibil, configurabil
  • Posibilitate montare scenă / cort / mese
  • Acces la bar / catering
  • Zonă pentru food trucks
  • Suport tehnic ( cost suplimentar )
  • Curățenie după eveniment ( contra cost )
  • Posibilitatea de branding

Exemple de evenimente:

  • Concerte
  • Expoziții
  • Târguri
  • Festivaluri mici
  • Evenimente comunitare
  • Picnic urban
  • Activări de brand
  • Evenimente sportive
  • Team building
  • Petreceri corporate
  • Evenimente de networking
  • Evenimente cu food trucks
  • Ședințe foto / video
  • Aniversări / petreceri private
  • Evenimente tematice sezoniere (Crăciun, Halloween, etc)

Un spațiu verde pentru evenimente sub cerul liber

Curtea reprezintă o platformă exterioară dedicată găzduirii evenimentelor în aer liber. Spațiul a fost proiectat pentru a asigura o versatilitate operațională extinsă, facilitând organizarea unei game variate de activități publice și private, incluzând concerte, târguri tematice, sesiuni de team building și festivaluri cu un profil definit. Prin designul său neutru și funcțional, curtea oferă un cadru adaptabil la cerințele logistice ale fiecărui proiect.

Locația se distinge prin capacitatea sa de a susține formate diverse de evenimente, de la cele cu caracter cultural și artistic, până la cele corporate sau comunitare. Punem la dispoziție un spațiu configurabil, ce beneficiază de acces optimizat și care răspunde nevoilor de desfășurare a oricărei activități în aer liber. Curtea interioară este soluția optimă pentru organizatorii care caută o locație centrală, flexibilă și eficientă pentru materializarea viziunilor lor.

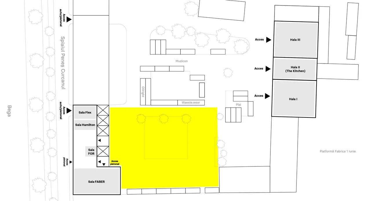
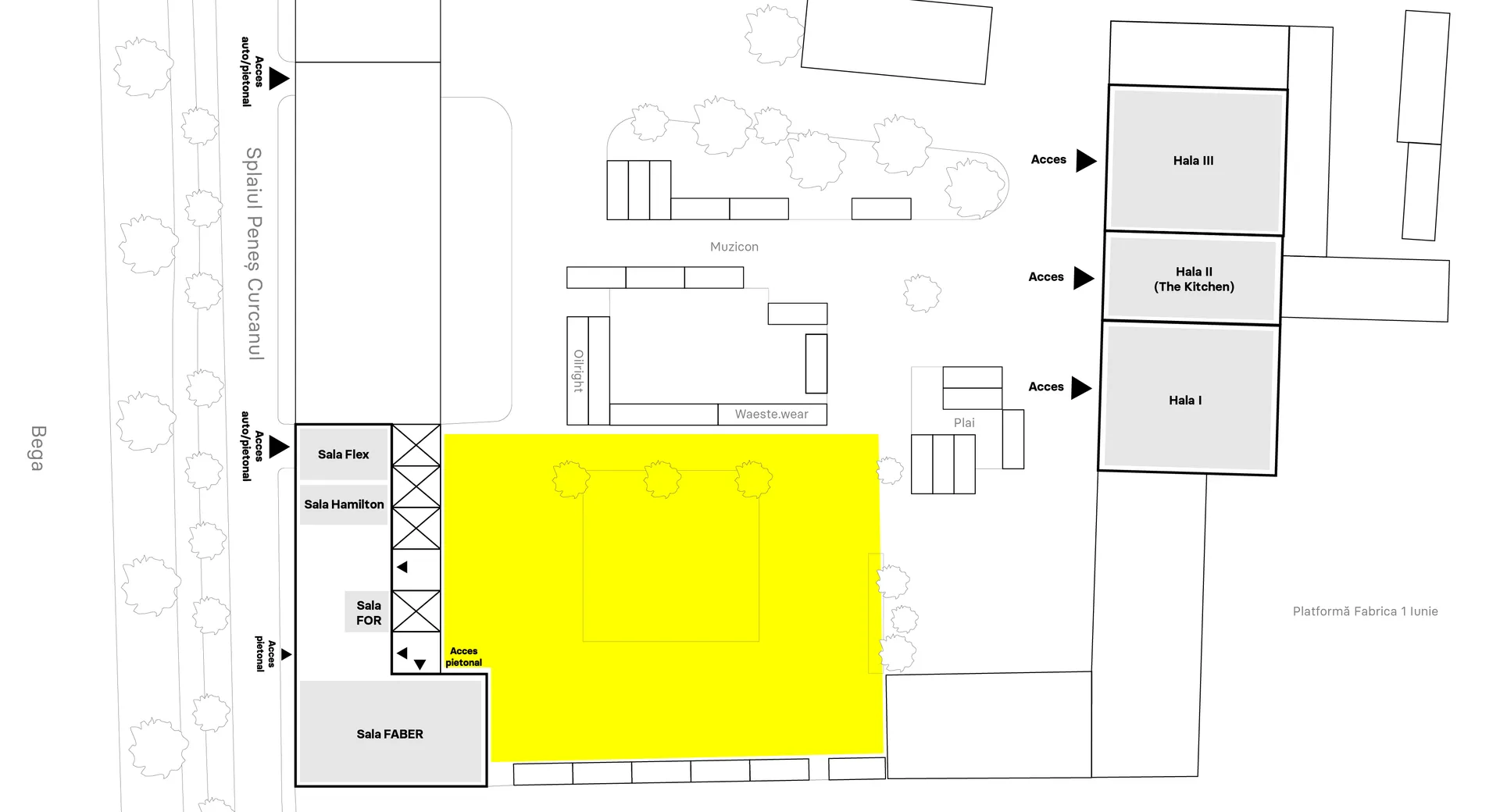
Hartă FABER Curte
Zona disponibilă de închiriat din curtea interioară.

Comunitate și atmosferă

Curtea FABER a devenit în timp un spațiu deschis și emblematic pentru comunitate și un punct de referință atunci când ne referim la evenimente mari, petreceri, concert și nu numai

Informații pentru vizitatori

Accesibilitate
Acces din stradă sau de la parter - zona de lobby a clădirii, acces cu scaun rulant, prietenos pentru copii, câini acceptați.

Cum ajungi la spațiu
Autobuz ( 28, 46, E4b, M30, M35), Troleibuz (11, 17, M11), Tramvai (1, 2, 5), bicicletă, trotinetă, mașină personală.

Facilitățile de la fața locului
Toalete, cafenea & bistro, terasă, zonă de fumat, spațiu verde.

Programul locului în afara orelor de eveniment
Bistro (10:00-18:00, Curte interioară & Co-work (08:00-22:00)

Rezervări & alte servicii

Tariful de închiriere include suportul logistic de bază, constând în configurarea spațiului cu mobilierul nostru existent și pregătirea preliminară a locației. Dacă se optează pentru utilizarea exclusivă a mobilierului organizatorului, responsabilitatea montării și demontării acestuia revine integral organizatorului.

Modalități de rezervare și prețuri

5500 lei

preț pe zi

în intervalul 10:00-22:00

Prețul nu include TVA.

Prețul acoperă serviciile și echipamentele de bază incluse. Personalizarea spațiului sau adăugarea de echipamente și servicii suplimentare pot implica costuri adiționale

Servicii și echipamente incluse

Serviciile incluse în prețul de închiriere sunt concepute pentru a susține evenimente de orice tip, de la întâlniri restrânse până la producții ample. Iată ce oferim:

Scaune
Scaune, care combină estetica modernă cu un confort ergonomic, oferind o experiență plăcută participanților.

Mese
Diverse tipuri de mese, configurabile rapid pentru a se adapta nevoilor evenimentului – fie pentru lucru, fie pentru servirea mesei.

Mese înalte
Mese de tip cocktail, ideale pentru sesiunile de networking, pauzele de cafea sau zonele de socializare informale.

Priză trifazic

Acces la priză trifazică (380V), esențială pentru echipamentele tehnice de mare putere, instalațiile de lumini complexe sau cateringul profesional.

Toalete
Grupuri sanitare moderne, curate și dimensionate corespunzător pentru fluxul de participanți.

Garduri
Garduri sau delimitatoare mobile, utile pentru gestionarea fluxului de public, delimitarea zonelor sau crearea de trasee inter

Servicii și echipamente adiționale

Curățenie
Pentru evenimentele de până la 50 de persoane curățenia este inclusă în preț. Excepție fac evenimentele complexe, precum petrecerile, evenimentele cu catering sau cu flux mare de participanți, pentru care se percepe un tarif de curățenie suplimentar pentru igienizarea și refacerea spațiului.

Taxa de curățenie suplimentară se calculează în funcție de specificul fiecărui eveniment și va fi comunicată în etapa de rezervare a spațiului.

DJ
Punem la dispoziție DJ profesioniști care pot asigura fundalul muzical adecvat sau pot crea atmosfera necesară pentru petreceri și evenimente dinamice.

Microfon fără fir
Microfoane wireless (fără fir) de înaltă fidelitate, ideale pentru prezentări libere, sesiuni interactive și mobilitate sporită pe scenă.

Servicii bar
Servicii complete de bar, de la setup-ul logistic la personal calificat, pentru a servi băuturi și a gestiona zona de socializare.

Servicii catering
Recomandări sau colaborare cu parteneri de catering pentru a oferi soluții culinare personalizate, adaptate oricărui tip de eveniment (de la bufet la cină festivă).

Tehnician sunet
Suport tehnic specializat din partea unui tehnician de sunet, asigurând calibrarea și operarea optimă a sistemului audio pe durata evenimentului.

Promovarea evenimentului

Vă oferim servicii de promovare a evenimentului pe canalele noastre de comunicare. Acestea includ publicarea detaliilor evenimentului pe site și postări în colaborare pe platformele noastre de social media.

Organizarea evenimentului

Dacă preferați o organizare fără griji, vă punem la dispoziție o echipă de event planning care preia integral coordonarea logistică și execuția evenimentului, asigurând un rezultat așa cum vă doriți.

Alte detalii

Facilități:

  • Acces pentru persoane cu dizabilități
  • Acces cu animale de companie
  • Acces auto pentru descărcare echipamente
  • Toalete în proximitate
  • Wi-fi
  • Spațiu flexibil, configurabil
  • Posibilitate montare scenă / cort / mese
  • Acces la bar / catering
  • Zonă pentru food trucks
  • Suport tehnic ( cost suplimentar )
  • Curățenie după eveniment ( contra cost )
  • Posibilitatea de branding

Exemple de evenimente:

  • Concerte
  • Expoziții
  • Târguri
  • Festivaluri mici
  • Evenimente comunitare
  • Picnic urban
  • Activări de brand
  • Evenimente sportive
  • Team building
  • Petreceri corporate
  • Evenimente de networking
  • Evenimente cu food trucks
  • Ședințe foto / video
  • Aniversări / petreceri private
  • Evenimente tematice sezoniere (Crăciun, Halloween, etc)