Hala III

Facilități:

  • Acces pentru persoane cu dizabiliăți
  • Acces cu animale de companie
  • Acces din curte
  • Parcare în curte (în limita locurilor disponibile)
  • Acces auto pentru descărcare echipamente
  • Zonă de depozitare
  • Wi-Fi de mare viteză

Exemple de evenimente:

  • Expoziții
  • Petreceri
  • Ateliere
  • Prezentări de branding
  • Performance-uri

Resurse spațioase pentru comunități și evenimente

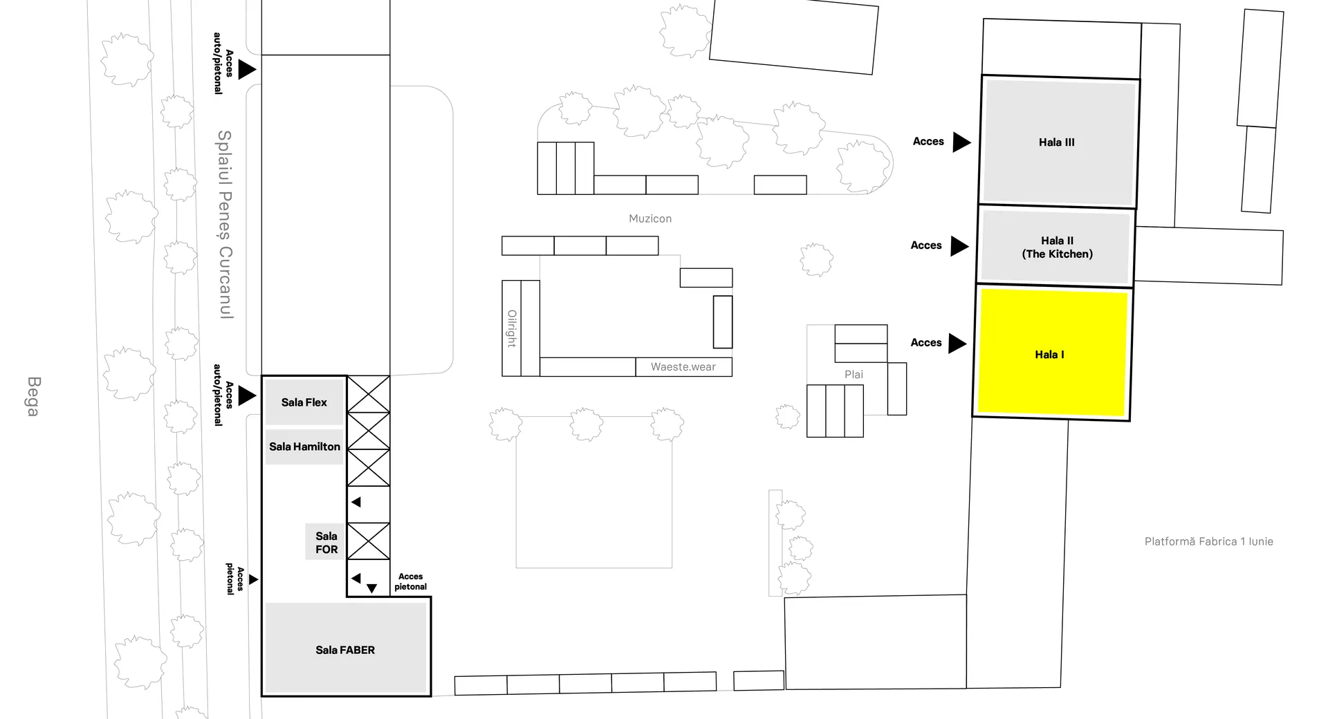
Halele AZUR sunt cel mai nou spațiu reabilitat din incinta FABER-AZUR. Deschise în anul Capitalei Culturale, ca rezultat al colaborării dintre AZUR, FABER și FOR, cele 3 săli sunt potrivite pentru expoziții și alte tipuri de evenimente ce au nevoie de spații ample, și pot fi închiriate în baza unei chirii modice. Spațiile sunt echipate cu instalație electrică și de iluminat, și au acces la internet.

Comunitate & atmosferă

Imagini de la expozițiile organizate în Hala III

Rezervare & alte servicii

Pregătirea spațiului

Tariful de închiriere include suportul logistic de bază, constând în configurarea spațiului cu mobilierul nostru existent și pregătirea preliminară a locației. Dacă se optează pentru utilizarea exclusivă a mobilierului organizatorului, responsabilitatea montării și demontării acestuia revine integral organizatorului.

Modalități de rezervare și prețuri

Închirierea Halelor se realizează exclusiv în regim săptămânal; totuși, suntem deschiși să discutăm punctual excepțiile și nevoile specifice în momentul solicitării dumneavoastră.

785 lei

pe săptămână

Acces 24/7

Prețul nu include TVA.

Prețul acoperă serviciile și echipamentele de bază incluse. Personalizarea spațiului sau adăugarea de echipamente și servicii suplimentare pot implica costuri adiționale

Informații pentru vizitatori

Accesibilitate
Acces din curtea interioară, acces cu scaun rulant, prietenos pentru copii, câini acceptați.

Cum ajungi la spațiu
Autobuz ( 28, 46, E4b, M30, M35), Troleibuz (11, 17, M11), Tramvai (1, 2, 5), bicicletă, trotinetă, mașină personală.

Facilitățile de la fața locului
Toalete, cafenea & bistro, terasă, zonă de fumat, spațiu verde.

Programul locului în afara orelor de eveniment
Bistro (10:00-18:00, Curte interioară & Co-work (08:00-22:00)

Servicii și echipamente incluse

Serviciile incluse în prețul de închiriere sunt concepute pentru a susține evenimente de orice tip, de la întâlniri restrânse până la producții ample. Iată ce oferim:

Scaune
Scaune, care combină estetica modernă cu un confort ergonomic, oferind o experiență plăcută participanților.

Mese
Diverse tipuri de mese, configurabile rapid pentru a se adapta nevoilor evenimentului – fie pentru lucru, fie pentru servirea mesei.

Mese înalte
Mese de tip cocktail, ideale pentru sesiunile de networking, pauzele de cafea sau zonele de socializare informale.

Priză trifazic

Acces la priză trifazică (380V), esențială pentru echipamentele tehnice de mare putere, instalațiile de lumini complexe sau cateringul profesional.

Garduri
Garduri sau delimitatoare mobile, utile pentru gestionarea fluxului de public, delimitarea zonelor sau crearea de trasee interne.

Toalete
Grupuri sanitare moderne, curate și dimensionate corespunzător pentru fluxul de participanți.
*Grupul sanitar deservește întreaga clădire și este localizat în lobby-ul Faber, la mică distanță de zonele de evenimente

Servicii și echipamente adiționale

Curățenie
Se percepe un tarif de curățenie pentru igienizarea și refacerea spațiului.

*Taxa de curățenie se calculează în funcție de specificul fiecărui eveniment și va fi comunicată în etapa de rezervare a spațiului.

DJ
Punem la dispoziție DJ profesioniști care pot asigura fundalul muzical adecvat sau pot crea atmosfera necesară pentru petreceri și evenimente dinamice.

Microfon fără fir
Microfoane wireless (fără fir) de înaltă fidelitate, ideale pentru prezentări libere, sesiuni interactive și mobilitate sporită pe scenă.

Servicii bar
Servicii complete de bar, de la setup-ul logistic la personal calificat, pentru a servi băuturi și a gestiona zona de socializare.

Servicii catering
Recomandări sau colaborare cu parteneri de catering pentru a oferi soluții culinare personalizate, adaptate oricărui tip de eveniment (de la bufet la cină festivă).

Servicii coffee break
Pachet de servicii dedicat pauzelor scurte, incluzând cafea, ceai, apă și gustări rapide, optimizat pentru conferințe și sesiuni de lucru.

Tehnician sunet
Suport tehnic specializat din partea unui tehnician de sunet, asigurând calibrarea și operarea optimă a sistemului audio pe durata evenimentului.

Promovarea evenimentului

Vă oferim servicii de promovare a evenimentului pe canalele noastre de comunicare. Acestea includ publicarea detaliilor evenimentului pe site și postări în colaborare pe platformele noastre de social media.

Alte detalii

Facilități:

  • Acces pentru persoane cu dizabiliăți
  • Acces cu animale de companie
  • Acces din curte
  • Parcare în curte (în limita locurilor disponibile)
  • Acces auto pentru descărcare echipamente
  • Zonă de depozitare
  • Wi-Fi de mare viteză

Exemple de evenimente:

  • Expoziții
  • Petreceri
  • Ateliere
  • Prezentări de branding
  • Performance-uri